Uudet tuotteet
HYDRAULIC VALVE HIAB 8XPC70 + 2X JOYSTICK - ELECTRIC CONTROL 12V

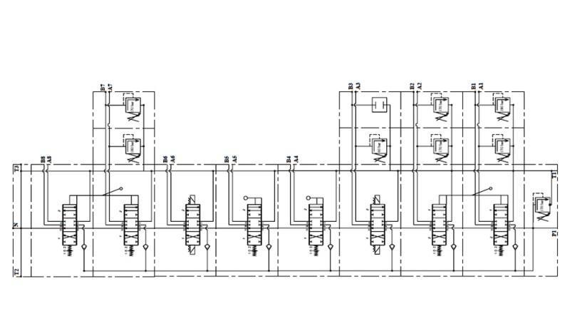
General description:
The manual or mechanical hydraulic valve РC70 is designed for the distribution and control of the working flow between the hydraulic pump and hydraulic cylinders.
The hydraulic valve is used for forestry trailers – (HIAB).
Assembled in a block of 8 segments.
Operation:
All hydraulic valves are equipped with a safety valve. In the neutral position (lever in the middle), oil circulates through the valve. When the lever is moved to one side or the other, the hydraulic valve causes the cylinder to move or the hydraulic motor to rotate in one direction or the other. Upon releasing the lever, it automatically returns to the neutral position, the hydraulic motor or cylinder stops in the current position, and oil circulates again through the valve. It is possible to use a so-called 'closed center' element, which changes the valve so that in the neutral position oil does not circulate through the valve or such a valve is no longer flowing. When using or connecting other valves, it is necessary to use a 'carry over' element, which allows oil supply for other valves.
For valves with spindles for floating function, it allows the cylinder free flow of oil, which consequently means that the cylinder moves freely (or the snow plow adapts to the terrain).
Valves with spindles for single-acting cylinders are intended for single-acting cylinders.
Construction:
РC70 is a monoblock distribution valve. It is made of cast iron EN-GJL300. The spindles are made of carbon steel and are hard chrome plated.
Connections:
The spindle is screwed with two M10 screws.











