Nowe produkty
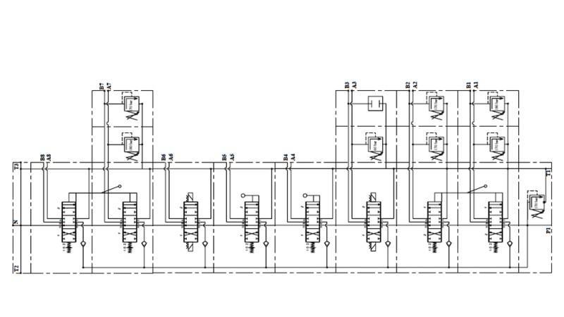
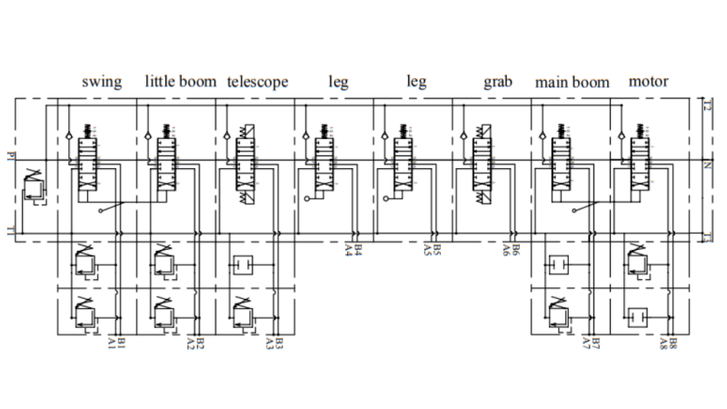
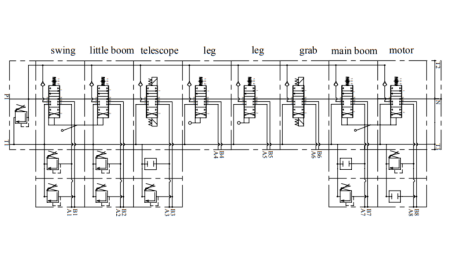
ZAWÓR HYDRAULICZNY HIAB 8XPC70 + 2X JOYSTICK - STEROWANIE ELEKTRYCZNE 12V

Opis ogólny:
Ręczny lub mechaniczny zawór hydrauliczny РC70 jest przeznaczony do rozdzielania i kontrolowania przepływu roboczego między pompą hydrauliczną a siłownikami hydraulicznymi.
Zawór hydrauliczny jest używany w przyczepach leśnych – (HIAB).
Składa się z bloku 8 segmentów.
Obsługa:
Wszystkie zawory hydrauliczne są wyposażone w zawór bezpieczeństwa. W pozycji neutralnej (dźwignia w środku) olej krąży przez zawór. Gdy dźwignia jest przesuwana na jedną lub drugą stronę, zawór hydrauliczny powoduje ruch siłownika lub obrót silnika hydraulicznego w jedną lub drugą stronę. Po zwolnieniu dźwigni automatycznie wraca do pozycji neutralnej, silnik hydrauliczny lub siłownik zatrzymuje się w bieżącej pozycji, a olej ponownie krąży przez zawór. Możliwe jest użycie tzw. elementu 'zamkniętego centrum', który zmienia zawór tak, aby w pozycji neutralnej olej nie krążył przez zawór lub taki zawór nie miał przepływu. Przy użyciu lub podłączeniu innych zaworów konieczne jest użycie elementu 'carry over', który umożliwia zasilanie olejem dla innych zaworów.
Dla zaworów z wrzecionami do funkcji pływającej, umożliwia to swobodny przepływ oleju w siłowniku, co oznacza, że siłownik porusza się swobodnie (lub pług śnieżny dostosowuje się do terenu).
Zawory z wrzecionami do siłowników jednostronnych są przeznaczone dla siłowników jednostronnych.
Budowa:
РC70 jest zaworem rozdzielczym monoblokowym. Wykonany jest z żeliwa EN-GJL300. Wrzeciona wykonane są ze stali węglowej i są pokryte twardym chromem.
Połączenia:
Wrzeciono jest przykręcone dwoma śrubami M10.











